89-16 65th Drive A
89-16 65th Drive A
SEE ALL PHOTOS
89-16 65th Drive A
89-16 65th Drive A
Leased

89-16 65th Drive A

89-16 65th Drive A, Queens, NY 11374

$4,000/month
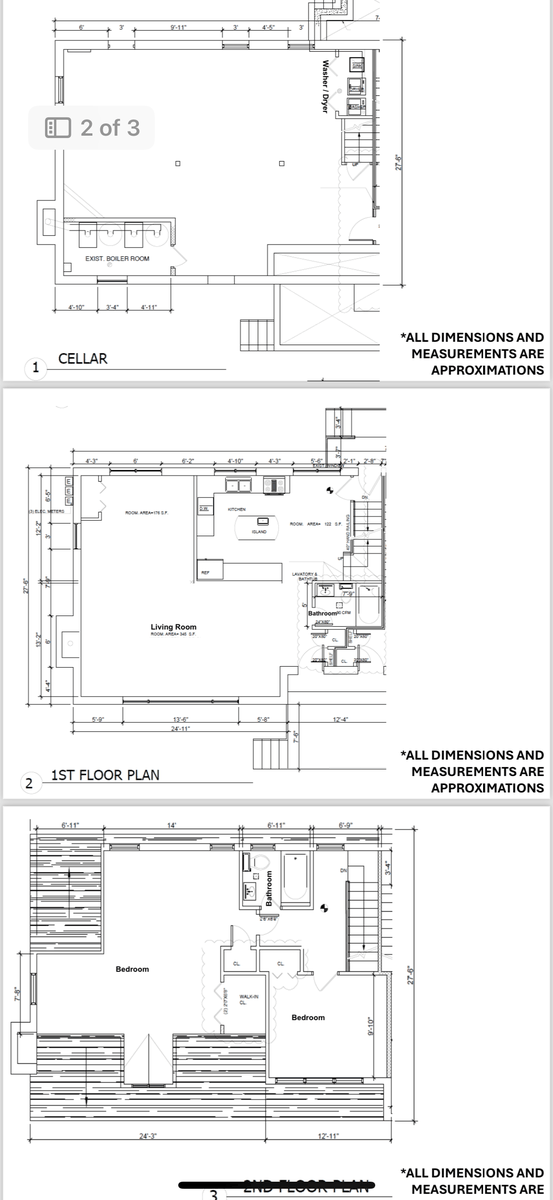
Welcome to your new home nestled in the vibrant neighborhood of Rego Park. This completely renovated 2-bedroom, 2-bathroom house offers a spacious layout across multiple levels with a full basement offering additional storage or recreation space. The sleek kitchen boasts stainless steel appliances (LG refrigerator, Miele dishwasher, Miele oven) and granite countertops. Enjoy the convenience of a Samsung washer/dryer and 1 car driveway parking. Situated in a great neighborhood, this property is close to shopping centers, restaurants, parks, and public transportation, providing easy access to all your needs.

2
beds

2
baths

4,006.8 Sq.Ft. lot

Tiffany Huang

Tiffany Huang

Features & Amenities

Interior

  • total bedrooms2
  • Total bathrooms2
  • full bathrooms2
  • Laundry room In Unit, See Remarks
  • APPLIANCES Dryer, Washer
  • other interior Features Dining Area, Kitchen Window

Area & Lot

  • Status Leased
  • Lot Area4,006.8 Sq.Ft.
  • MLS® IDRLS10995225
  • TypeResidential
  • YEAR BUILT1955
  • Architecture StylesWalk-Up

Exterior

  • STORIES2
  • AIR CONDITIONINGCentral Air
  • other exterior FeaturesBuilding Garden

Financial

  • Lease Price$4,000/mo

Mortgage Calculator

Estimate your monthly mortgage payment, including the principal and interest, property taxes, and HOA. Adjust the values to generate a more accurate rate.

All estimates are provided for informational purposes only. Actual amounts may vary.
$0,000 Your Payment 20 15 65
$0,000 Your Payment

Work With Us

We pride ourselves in providing personalized solutions that bring our clients closer to their dream properties and enhance their long-term wealth. Contact us today to find out how we can be of assistance to you!

Follow Us on Instagram